120 Edinborough Court, Smythe, Toronto
Open House Apr 25th - 26th, 2-4PM

120 Edinborough Court

Smythe, Toronto

About this Detached in Smythe

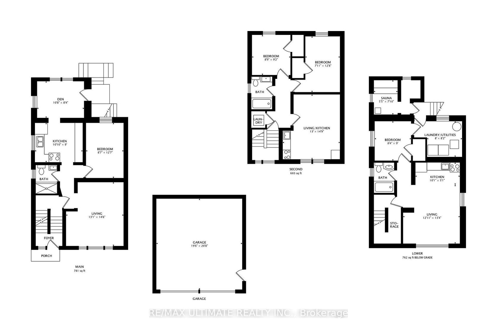
Incredible Investment Opportunity! Detached Home on a Huge 50 x 100 Ft Lot in desirable Smythe Park, backing on to a tranquil ravine and situated on a quiet, private, family-friendly court. Offering over 2,000 sq. ft. of Total Living Space. Currently configured as three spacious, self-contained units: 2nd Floor: 2-Bedroom with private in-suite laundry; Main Floor: 1-Bedroom + Den; Lower Level: 1-Bedroom unit. All units feature upgraded Kitchens and Bathrooms, have been freshly painted, and offer large sun-filled windows with excellent natural light. The main floor includes a rear entrance providing convenient access to the backyard, parking, and shared lower-level laundry (accessed via separate rear entrance). Rare Bonus Feature: A private Sauna, accessed through a separate rear entrance - perfect for wellness enthusiasts seeking comfort, relaxation, and year-round enjoyment. All three units are currently vacant, presenting an opportunity for first-time buyers to live-in one unit and rent the others or perfect for investors to rent all three units and set market rents. Easily converted to a single-family home with basement apartment with front and rear entrances. Extra-large private driveway accommodates up to 6 vehicles + rare oversized 400 sq. ft. double car garage (spray foam insulated) with potential for a future garden suite (buyer to verify). Prime location close to: Lambton Golf & Country Club, Humber River & Trails, Lambton Arena, Smythe Park, Loblaws, Summerhill Market, Starbucks, Walmart Supercentre, Stock Yards Village. TTC At Your Door - 1 Bus to Runnymede Subway Station, Bloor West & the Junction. Easy access to highways and all major Conveniences. ***Please note some photos feature virtual staging.***

Listed by RE/MAX ULTIMATE REALTY INC..

Read More

Incredible Investment Opportunity! Detached Home on a Huge 50 x 100 Ft Lot in desirable Smythe Park, backing on to a tranquil ravine and situated on a quiet, private, family-friendly court. Offering over 2,000 sq. ft. of Total Living Space. Currently configured as three spacious, self-contained units: 2nd Floor: 2-Bedroom with private in-suite laundry; Main Floor: 1-Bedroom + Den; Lower Level: 1-Bedroom unit. All units feature upgraded Kitchens and Bathrooms, have been freshly painted, and offer large sun-filled windows with excellent natural light. The main floor includes a rear entrance providing convenient access to the backyard, parking, and shared lower-level laundry (accessed via separate rear entrance). Rare Bonus Feature: A private Sauna, accessed through a separate rear entrance - perfect for wellness enthusiasts seeking comfort, relaxation, and year-round enjoyment. All three units are currently vacant, presenting an opportunity for first-time buyers to live-in one unit and rent the others or perfect for investors to rent all three units and set market rents. Easily converted to a single-family home with basement apartment with front and rear entrances. Extra-large private driveway accommodates up to 6 vehicles + rare oversized 400 sq. ft. double car garage (spray foam insulated) with potential for a future garden suite (buyer to verify). Prime location close to: Lambton Golf & Country Club, Humber River & Trails, Lambton Arena, Smythe Park, Loblaws, Summerhill Market, Starbucks, Walmart Supercentre, Stock Yards Village. TTC At Your Door - 1 Bus to Runnymede Subway Station, Bloor West & the Junction. Easy access to highways and all major Conveniences. ***Please note some photos feature virtual staging.***

Listed by RE/MAX ULTIMATE REALTY INC..

Brought to you by your friendly REALTORS® through the MLS® System, courtesy of Brixwork for your convenience.
Disclaimer: This representation is based in whole or in part on data generated by the Brampton Real Estate Board, Durham Region Association of REALTORS®, Mississauga Real Estate Board, The Oakville, Milton and District Real Estate Board and the Toronto Real Estate Board which assumes no responsibility for its accuracy.

More Details
  • MLS®: W13037248
  • Bedrooms: 3
  • Bathrooms: 3
  • Type: Detached
  • Square Feet: 1,100 sqft
  • Lot Size: 5,011 sqft
  • Frontage: 50.07 ft
  • Depth: 100.08 ft
  • Taxes: $5,203.30 (2025)
  • Parking: 8 Detached
  • Basement: Finished, Separate Entrance
  • Year Built: 5199
  • Style: 2-Storey

Contact us today to view any of these properties

416-509-5204













Similar Listings