12 Tallforest Crescent, Markland Wood, Toronto
Listed Today

12 Tallforest Crescent

Markland Wood, Toronto

About this Detached in Markland Wood

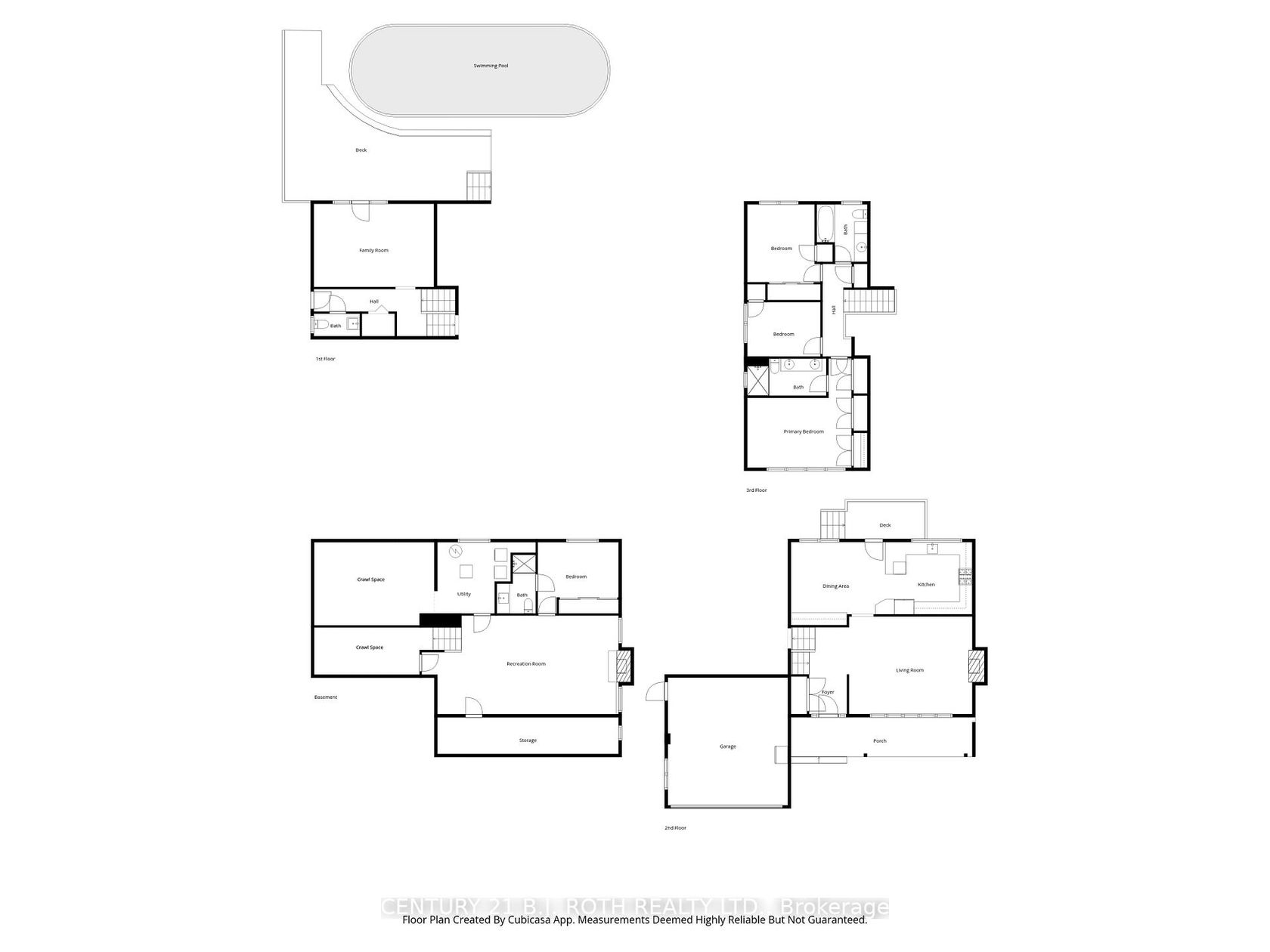
Well-maintained and thoughtfully updated all-brick 4-level sidesplit offering 3+1 bedrooms, 3 full bathrooms plus powder room, and double car garage in highly sought-after Markland Woods. Bright, spacious interior begins with covered front porch entry and flows through main level with gleaming hardwood floors, gas fireplace, California shutters, and crown moulding. Updated kitchen designed for everyday living and entertaining with neutral cabinetry, pot drawers, pantry, quartz countertops, breakfast bar, pot lights, stainless steel appliances, and farmhouse sink. Dining area enhanced by custom built-in cabinetry with quartz serving space. Walkout to fully fenced backyard with pool, new deck (2022), and gas BBQ hookup, creating private outdoor retreat. Upper level offers three well-sized bedrooms, including primary with three closets and 4-piece ensuite with double sinks. Main bathroom with soaker tub. Lower level family room with walkout to backyard adds flexible living space. Basement ideal for in-law or nanny suite with large rec room, gas fireplace, bedroom, and renovated 3-piece bathroom. Cold room and crawl space provide additional storage.

Listed by CENTURY 21 B.J. ROTH REALTY LTD..

Read More

Well-maintained and thoughtfully updated all-brick 4-level sidesplit offering 3+1 bedrooms, 3 full bathrooms plus powder room, and double car garage in highly sought-after Markland Woods. Bright, spacious interior begins with covered front porch entry and flows through main level with gleaming hardwood floors, gas fireplace, California shutters, and crown moulding. Updated kitchen designed for everyday living and entertaining with neutral cabinetry, pot drawers, pantry, quartz countertops, breakfast bar, pot lights, stainless steel appliances, and farmhouse sink. Dining area enhanced by custom built-in cabinetry with quartz serving space. Walkout to fully fenced backyard with pool, new deck (2022), and gas BBQ hookup, creating private outdoor retreat. Upper level offers three well-sized bedrooms, including primary with three closets and 4-piece ensuite with double sinks. Main bathroom with soaker tub. Lower level family room with walkout to backyard adds flexible living space. Basement ideal for in-law or nanny suite with large rec room, gas fireplace, bedroom, and renovated 3-piece bathroom. Cold room and crawl space provide additional storage.

Listed by CENTURY 21 B.J. ROTH REALTY LTD..

Brought to you by your friendly REALTORS® through the MLS® System, courtesy of Brixwork for your convenience.
Disclaimer: This representation is based in whole or in part on data generated by the Brampton Real Estate Board, Durham Region Association of REALTORS®, Mississauga Real Estate Board, The Oakville, Milton and District Real Estate Board and the Toronto Real Estate Board which assumes no responsibility for its accuracy.

More Details
  • MLS®: W12976390
  • Bedrooms: 3
  • Bathrooms: 4
  • Type: Detached
  • Square Feet: 2,000 sqft
  • Lot Size: 7,060 sqft
  • Frontage: 65.00 ft
  • Depth: 108.62 ft
  • Taxes: $7,714 (2025)
  • Parking: 6 Attached
  • Basement: Finished
  • Year Built: 5199
  • Style: Sidesplit 4

Contact us today to view any of these properties

416-509-5204













Similar Listings