13 Irwin Drive, Northwest, Barrie

13 Irwin Drive

Northwest, Barrie

About this Detached in Northwest

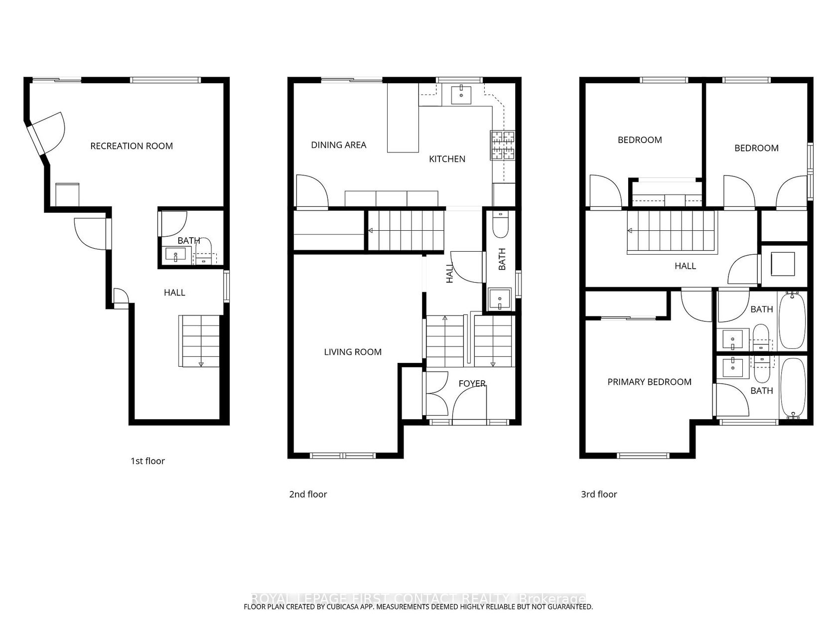
Well-Maintained All-Brick 2-Storey with Heated Saltwater Pool on a Corner Lot! Welcome to this spacious and beautifully maintained all-brick 2- storey home, ideally situated on a corner lot with interlocking driveway/front patio in a family-friendly neighbourhood across from the park and scenic trails. The main floor features new luxury vinyl flooring, a bright eat-in kitchen with brand-new stainless steel appliances, a cozy living room with a wood-burning fireplace, formal dining room with french doors, powder room, and a versatile family room, perfect for kids or a home office. Convenient main floor laundry offers inside access to the garage. Upstairs, you'll find four generous bedrooms, including a large primary suite with double french doors, a sitting area, double closets including one walk-in, and a 5-piece ensuite. An additional 4- piece bathroom completes the upper level.The partially finished basement includes new luxury vinyl flooring throughout, a workshop, & a rough-in for a bathroom, ready for your finishing touches. The low-maintenance backyard is an entertainers dream with turf grass, a gazebo, glass-railed deck, and a stunning in-ground heated saltwater pool with new heater & Salt Cell (2025) surrounded by new Unilock stonework. Located close to Sunnidale Park, top-rated schools, shopping, and all major amenities, this home checks all the boxes!

Listed by ROYAL LEPAGE FIRST CONTACT REALTY.

Read More

Well-Maintained All-Brick 2-Storey with Heated Saltwater Pool on a Corner Lot! Welcome to this spacious and beautifully maintained all-brick 2- storey home, ideally situated on a corner lot with interlocking driveway/front patio in a family-friendly neighbourhood across from the park and scenic trails. The main floor features new luxury vinyl flooring, a bright eat-in kitchen with brand-new stainless steel appliances, a cozy living room with a wood-burning fireplace, formal dining room with french doors, powder room, and a versatile family room, perfect for kids or a home office. Convenient main floor laundry offers inside access to the garage. Upstairs, you'll find four generous bedrooms, including a large primary suite with double french doors, a sitting area, double closets including one walk-in, and a 5-piece ensuite. An additional 4- piece bathroom completes the upper level.The partially finished basement includes new luxury vinyl flooring throughout, a workshop, & a rough-in for a bathroom, ready for your finishing touches. The low-maintenance backyard is an entertainers dream with turf grass, a gazebo, glass-railed deck, and a stunning in-ground heated saltwater pool with new heater & Salt Cell (2025) surrounded by new Unilock stonework. Located close to Sunnidale Park, top-rated schools, shopping, and all major amenities, this home checks all the boxes!

Listed by ROYAL LEPAGE FIRST CONTACT REALTY.

Brought to you by your friendly REALTORS® through the MLS® System, courtesy of Brixwork for your convenience.
Disclaimer: This representation is based in whole or in part on data generated by the Brampton Real Estate Board, Durham Region Association of REALTORS®, Mississauga Real Estate Board, The Oakville, Milton and District Real Estate Board and the Toronto Real Estate Board which assumes no responsibility for its accuracy.

More Details
  • MLS®: S12985380
  • Bedrooms: 4
  • Bathrooms: 3
  • Type: Detached
  • Square Feet: 2,000 sqft
  • Lot Size: 4,973 sqft
  • Frontage: 45.50 ft
  • Depth: 109.30 ft
  • Taxes: $5,985 (2025)
  • Parking: 4 Attached
  • Basement: Full, Partially Finished
  • Style: 2-Storey

Contact us today to view any of these properties

416-509-5204













Address on Google Mapsmap marker icon
Map View
Street View

More About Northwest, Barrie

lattitude: 44.3982372

longitude: -79.724436

L4N 7A6


Share Location

Similar Listings