65 Donald Street, Queen

65 Donald Street

Queen's Park, Barrie

About this Detached in Queen's Park

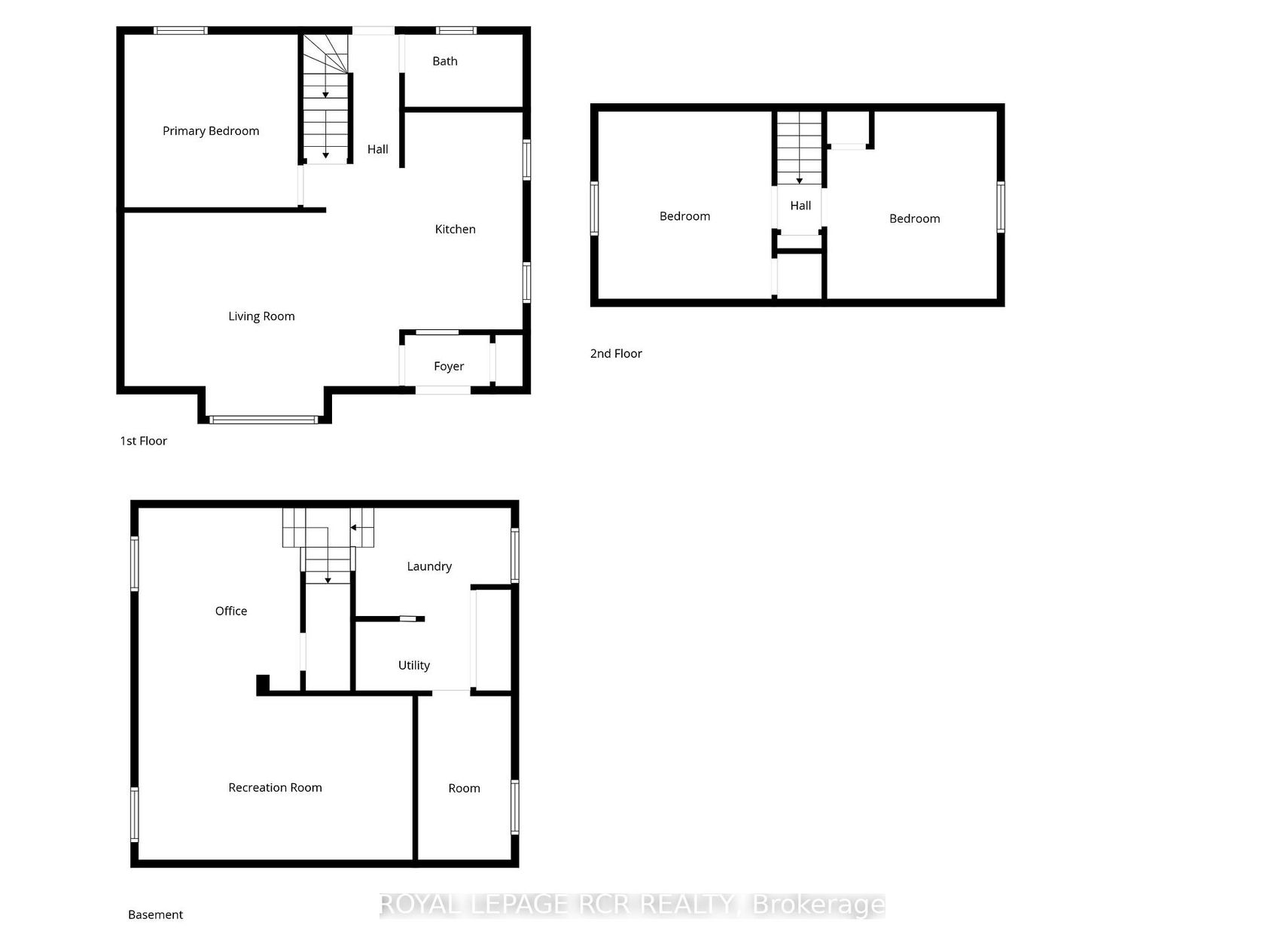
Welcome to this adorable 1.5-storey home full of character and thoughtful updates. Built in 1950, this well-maintained property features beautiful original hardwood floors and a functional layout that suits a variety of buyers. The main floor offers a primary bedroom and convenient 3-piece bathroom, ideal for those seeking main floor living. Upstairs you'll find two additional bedrooms, perfect for kids, guests, or a home office. The finished basement adds extra living space with a cozy family room, office area, laundry, and plenty of storage. Step outside to enjoy the covered back porch overlooking a fully fenced yard, offering a great space to relax or entertain. A detached single-car garage provides additional storage and parking. Important updates have already been completed, including roof (approx. 8 years), windows & doors, furnace, central air all 2010. Plus, a 200-amp breaker panel, giving peace of mind to the next owner. Conveniently located within walking distance to downtown Barrie, parks, and shopping. Vacant and available for quick possession, making this a fantastic opportunity for first-time buyers, downsizers, or investors.

Listed by ROYAL LEPAGE RCR REALTY.

Read More

Welcome to this adorable 1.5-storey home full of character and thoughtful updates. Built in 1950, this well-maintained property features beautiful original hardwood floors and a functional layout that suits a variety of buyers. The main floor offers a primary bedroom and convenient 3-piece bathroom, ideal for those seeking main floor living. Upstairs you'll find two additional bedrooms, perfect for kids, guests, or a home office. The finished basement adds extra living space with a cozy family room, office area, laundry, and plenty of storage. Step outside to enjoy the covered back porch overlooking a fully fenced yard, offering a great space to relax or entertain. A detached single-car garage provides additional storage and parking. Important updates have already been completed, including roof (approx. 8 years), windows & doors, furnace, central air all 2010. Plus, a 200-amp breaker panel, giving peace of mind to the next owner. Conveniently located within walking distance to downtown Barrie, parks, and shopping. Vacant and available for quick possession, making this a fantastic opportunity for first-time buyers, downsizers, or investors.

Listed by ROYAL LEPAGE RCR REALTY.

Brought to you by your friendly REALTORS® through the MLS® System, courtesy of Brixwork for your convenience.
Disclaimer: This representation is based in whole or in part on data generated by the Brampton Real Estate Board, Durham Region Association of REALTORS®, Mississauga Real Estate Board, The Oakville, Milton and District Real Estate Board and the Toronto Real Estate Board which assumes no responsibility for its accuracy.

More Details
  • MLS®: S12872928
  • Bedrooms: 3
  • Bathrooms: 1
  • Type: Detached
  • Square Feet: 700 sqft
  • Lot Size: 7,500 sqft
  • Frontage: 50.00 ft
  • Depth: 150.00 ft
  • Taxes: $4,263.50 (2025)
  • Parking: 3 Detached
  • Basement: Full, Partially Finished
  • Year Built: 5199
  • Style: 1 1/2 Storey

Contact us today to view any of these properties

416-509-5204