263 Anne Street N, Sunnidale, Barrie

263 Anne Street N

Sunnidale, Barrie

About this Detached in Sunnidale

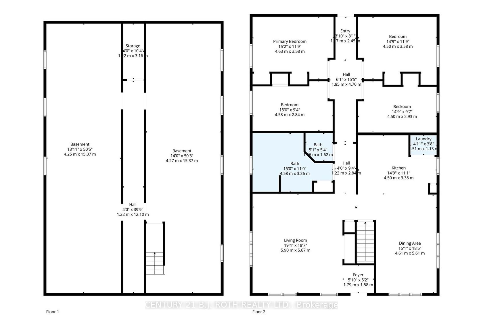
Welcome to 263 Anne St N, Barrie! This well-maintained bungalow offers nearly 2,000 sq ft of thoughtfully designed main floor living space, making it an ideal opportunity for investors, group home organizations, or anyone seeking wheelchair-accessible living. Equipped for accessibility, the home features front and rear ramps, widened doorways and hallways and accessible bathrooms. Key upgrades include a Generac generator, fire suppression system, durable steel roof, newer furnace, central air conditioning, and updated windows. Inside, you're welcomed into a bright and expansive living room filled with natural light. The open-concept kitchen boasts ample cabinetry and a functional peninsula, seamlessly flowing into an oversized dining area - perfect for family gatherings or entertaining. The main floor offers four generously sized bedrooms, large 5-piece accessible non barrier free bathroom and a convenient 2-piece powder room, all designed with mobility in mind. The partially finished basement provides additional space ready to be customized to suit your needs - whether its more bedrooms, a rec room, or additional storage. Outside, enjoy a spacious, mature yard with a massive wheelchair-accessible deck, ideal for relaxing or outdoor entertaining. Great value to be had with this huge bungalow in a great location! Walk to schools and parks, public transit at your door! Dont miss this rare opportunity to own a versatile, accessible home with so much to offer!

Listed by CENTURY 21 B.J. ROTH REALTY LTD..

Read More

Welcome to 263 Anne St N, Barrie! This well-maintained bungalow offers nearly 2,000 sq ft of thoughtfully designed main floor living space, making it an ideal opportunity for investors, group home organizations, or anyone seeking wheelchair-accessible living. Equipped for accessibility, the home features front and rear ramps, widened doorways and hallways and accessible bathrooms. Key upgrades include a Generac generator, fire suppression system, durable steel roof, newer furnace, central air conditioning, and updated windows. Inside, you're welcomed into a bright and expansive living room filled with natural light. The open-concept kitchen boasts ample cabinetry and a functional peninsula, seamlessly flowing into an oversized dining area - perfect for family gatherings or entertaining. The main floor offers four generously sized bedrooms, large 5-piece accessible non barrier free bathroom and a convenient 2-piece powder room, all designed with mobility in mind. The partially finished basement provides additional space ready to be customized to suit your needs - whether its more bedrooms, a rec room, or additional storage. Outside, enjoy a spacious, mature yard with a massive wheelchair-accessible deck, ideal for relaxing or outdoor entertaining. Great value to be had with this huge bungalow in a great location! Walk to schools and parks, public transit at your door! Dont miss this rare opportunity to own a versatile, accessible home with so much to offer!

Listed by CENTURY 21 B.J. ROTH REALTY LTD..

Brought to you by your friendly REALTORS® through the MLS® System, courtesy of Brixwork for your convenience.
Disclaimer: This representation is based in whole or in part on data generated by the Brampton Real Estate Board, Durham Region Association of REALTORS®, Mississauga Real Estate Board, The Oakville, Milton and District Real Estate Board and the Toronto Real Estate Board which assumes no responsibility for its accuracy.

More Details
  • MLS®: S12454725
  • Bedrooms: 4
  • Bathrooms: 2
  • Type: Detached
  • Square Feet: 1,500 sqft
  • Frontage: 50.00 ft
  • Depth: 110.00 ft
  • Taxes: $5,322 (2025)
  • Parking: 4 Parking(s)
  • Basement: Full, Partially Finished
  • Year Built: 3150
  • Style: Bungalow

Contact us today to view any of these properties

416-509-5204













Similar Listings