1424 Klondike Park Road, Rural Clearview, Clearview

1424 Klondike Park Road

Rural Clearview, Clearview

About this Detached in Rural Clearview

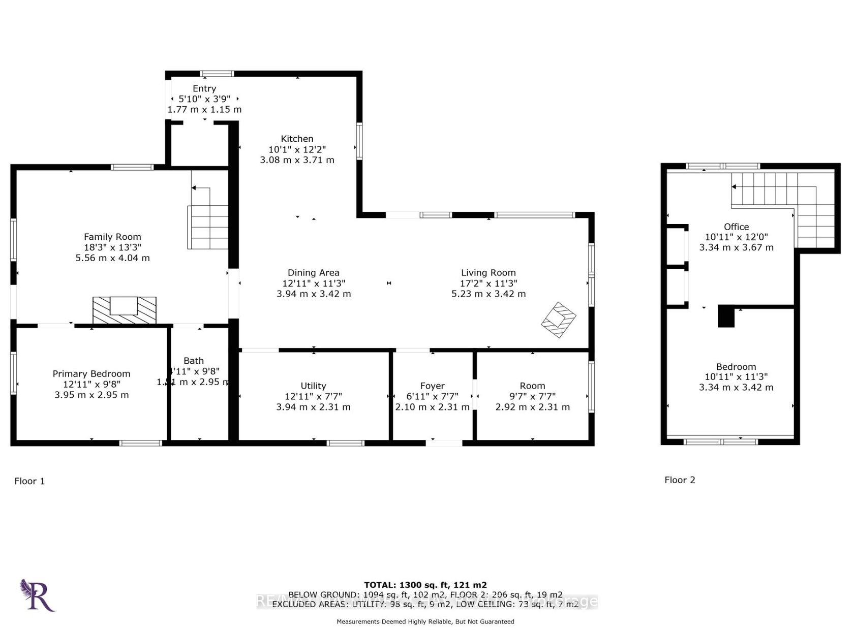
25 acre property and 1300 square foot home! Incredible hobby farm or homestead opportunity. This property offers nearly 25 acres minutes to Stayner and Wasaga Beach. The property features approximately 4 acres of maple bush and 15+ acres of pasture/farmland with beautiful escarpment views. Additional structures include 1900's built barn, chicken coop, greenhouse and cute "cabin the woods". Multiple pastures and coops are ready for your livestock. The charming log home was built in 1870 and is larger that it looks offering 1300 square feet of living space. Main floor has a bright living room dining room with wood burning fireplace that overlooks the property. Upper level features large bedroom. Additional main floor bedroom or office space. Cabin offers cute guest space or "glamping" opportunity on your own property.

Listed by RE/MAX HALLMARK CHAY REALTY.

Read More

25 acre property and 1300 square foot home! Incredible hobby farm or homestead opportunity. This property offers nearly 25 acres minutes to Stayner and Wasaga Beach. The property features approximately 4 acres of maple bush and 15+ acres of pasture/farmland with beautiful escarpment views. Additional structures include 1900's built barn, chicken coop, greenhouse and cute "cabin the woods". Multiple pastures and coops are ready for your livestock. The charming log home was built in 1870 and is larger that it looks offering 1300 square feet of living space. Main floor has a bright living room dining room with wood burning fireplace that overlooks the property. Upper level features large bedroom. Additional main floor bedroom or office space. Cabin offers cute guest space or "glamping" opportunity on your own property.

Listed by RE/MAX HALLMARK CHAY REALTY.

Brought to you by your friendly REALTORS® through the MLS® System, courtesy of Brixwork for your convenience.
Disclaimer: This representation is based in whole or in part on data generated by the Brampton Real Estate Board, Durham Region Association of REALTORS®, Mississauga Real Estate Board, The Oakville, Milton and District Real Estate Board and the Toronto Real Estate Board which assumes no responsibility for its accuracy.

More Details
  • MLS®: S12412729
  • Bedrooms: 3
  • Bathrooms: 1
  • Type: Detached
  • Square Feet: 1,500 sqft
  • Frontage: 1,112.44 ft
  • Depth: 966.55 ft
  • Taxes: $1,358.80 (2024)
  • Parking: 4 Parking(s)
  • View: Mountain, Pasture, Trees/Woods
  • Basement: Crawl Space
  • Year Built: 1925
  • Style: 1 1/2 Storey

Contact us today to view any of these properties

416-509-5204













Similar Listings