About this Detached in Alcona
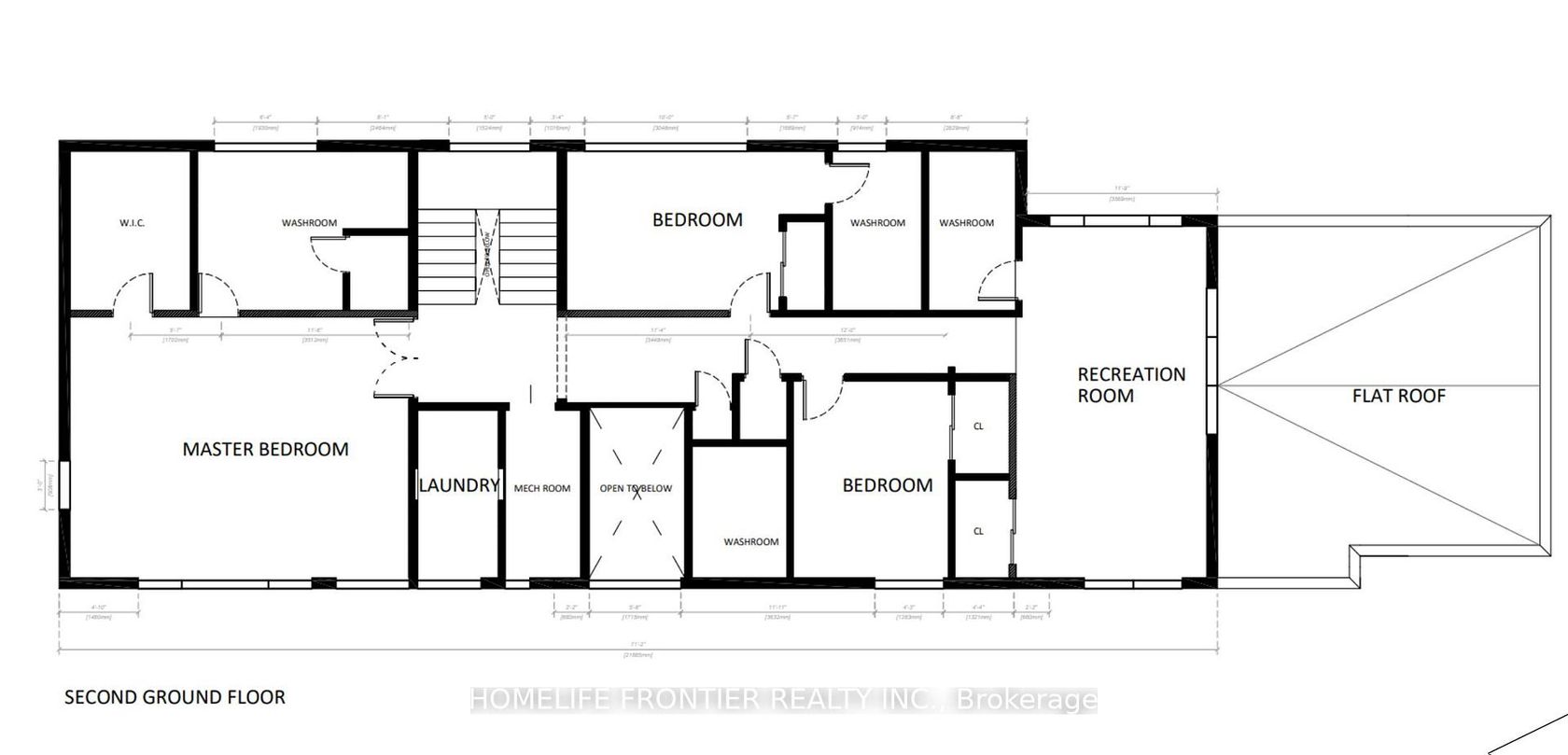
Opportunity Knocks! This Proposed 4,300sqft 2-Storey Detached 3-Car Garage is ideal for Builders, Investors & Individuals looking to build that Dream Home, Summer Getaway property or Retirement Haven in lovely Alcona. Fantastic location, a short walk to lake Simcoe. Ready to build project Over $380k spent in Stage 1! **Opportunity also available to purchase 2 Adjacent Lots together** 65x149 Ft Fully Serviced Lot, Hydro, Sewer, Cable, Telephone services are at the property. Pe…rmits already in place with city, Foundation formed & base framing up. New owner can obtain Permit Plans (through current Architect or any of their choice), to continue Construction. Conceptual Images Available & all information will be transferred over to new owner.
Listed by  HOMELIFE FRONTIER REALTY INC..
Opportunity Knocks! This Proposed 4,300sqft 2-Storey Detached 3-Car Garage is ideal for Builders, Investors & Individuals looking to build that Dream Home, Summer Getaway property or Retirement Haven in lovely Alcona. Fantastic location, a short walk to lake Simcoe. Ready to build project Over $380k spent in Stage 1! **Opportunity also available to purchase 2 Adjacent Lots together** 65x149 Ft Fully Serviced Lot, Hydro, Sewer, Cable, Telephone services are at the property. Permits already in place with city, Foundation formed & base framing up. New owner can obtain Permit Plans (through current Architect or any of their choice), to continue Construction. Conceptual Images Available & all information will be transferred over to new owner.
Listed by HOMELIFE FRONTIER REALTY INC..
							 Brought to you by your friendly REALTORS® through the MLS® System, courtesy of Brixwork for your convenience.
							Brought to you by your friendly REALTORS® through the MLS® System, courtesy of Brixwork for your convenience.
							Disclaimer: This representation is based in whole or in part on data generated by the Brampton Real Estate Board, Durham Region Association of REALTORS®, Mississauga Real Estate Board, The Oakville, Milton and District Real Estate Board and the Toronto Real Estate Board which assumes no responsibility for its accuracy.
						
More Details
- MLS®: N12379340
- Bedrooms: 4
- Bathrooms: 5
- Type: Detached
- Square Feet: 3,500 sqft
- Lot Size: 9,720 sqft
- Frontage: 65.21 ft
- Depth: 149.05 ft
- Taxes: $1,285.79 (2024)
- Parking: 6 Attached
- Basement: Crawl Space
- Style: 2-Storey
 
	
     
						 
						 
						 
						 
						 
						 
						 
						 
						 
						 
                 
                 
                 
                 
                 
                 
                 
                 
                