#710 - 3121 Sheppard Avenue E, Sullivan, Toronto
Open House Apr 25th - 26th, 2-4PM

#710 - 3121 Sheppard Avenue E

Sullivan, Toronto

About this Condo in Sullivan

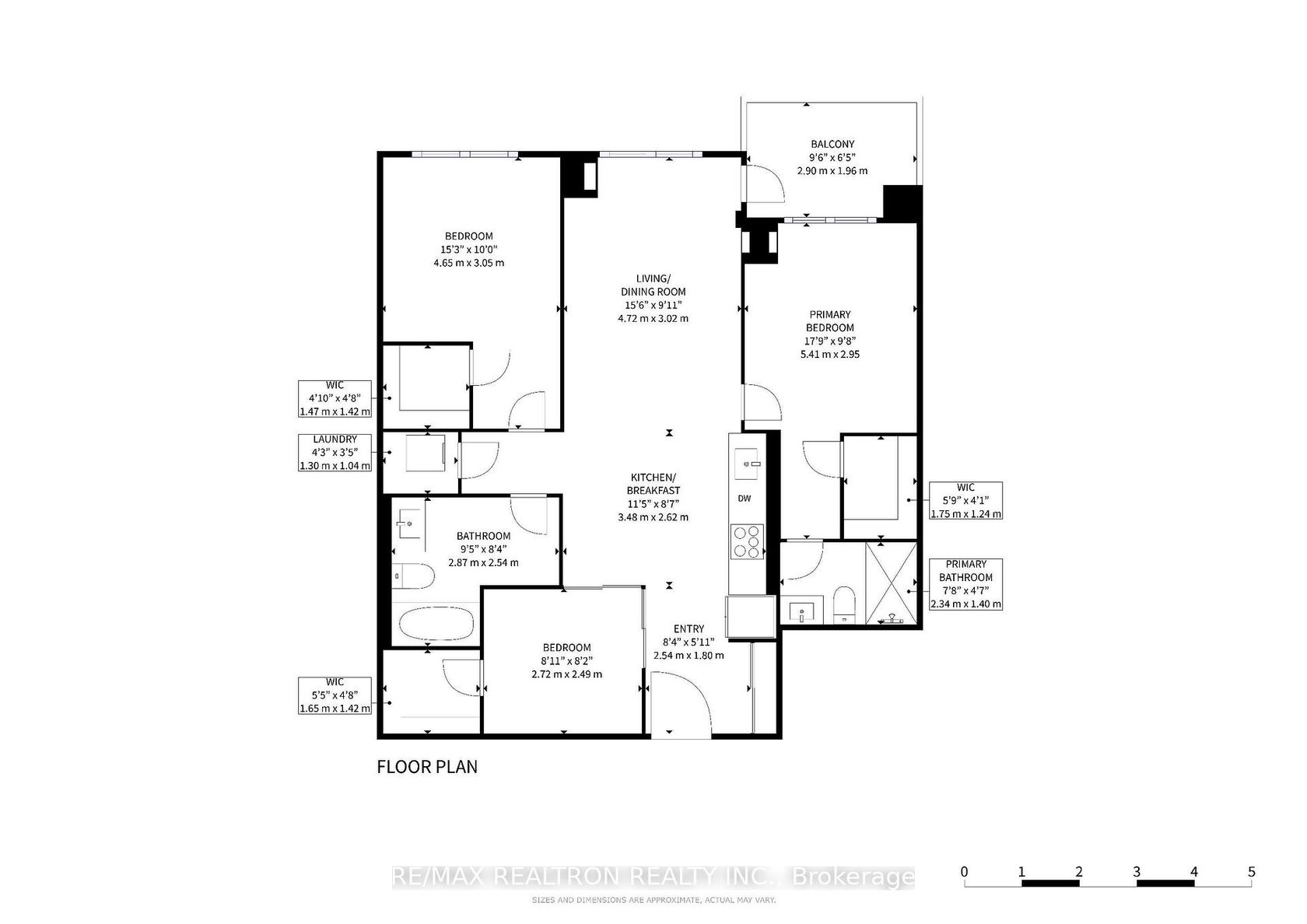
Step into a space that actually fits your life. At over 1,000 sq ft, this 3-bedroom suite at 3121 Sheppard Ave E #710 stands out in a market where most condos feel like a compromise. Here, you get room to grow, whether that means working from home, hosting friends, or simply having space to breathe at the end of the day. The layout just works. It is open, functional, and finished with hard surface flooring throughout, designed for low-maintenance, everyday living.The kitchen flows naturally into the living space, making it easy to cook, unwind, or entertain without feeling boxed in. All three bedrooms come with walk-in closets, offering a level of storage rarely found in condo living. What makes this unit different is its flexibility. The third bedroom, with its sleek glass enclosure, adapts to your lifestyle, it can be a home office today, a nursery tomorrow, or a guest space when you need it. Step out onto the balcony for open city views, or take advantage of the rare convenience of having a full outdoor terrace on the same floor, perfect for a quick reset without leaving the building.With parking included and maintenance fees covering heat, CAC, and water, with only hydro extra, this is a practical choice as much as it is a lifestyle upgrade. Enjoy unmatched convenience with premium amenities just steps away, including outdoor terrace, fitness centre, yoga studio, party and media rooms, guest suites, visitor parking, and 24-hour concierge. Located right where you need to be, with transit at your doorstep, quick access to Highways 401, 404, and the DVP, and everything from groceries to dining at Fairview Mall nearby, this is a home that keeps up with your pace. For those who want more than just a condo, this is space, flexibility, and everyday ease, all in one.

Listed by RE/MAX REALTRON REALTY INC..

Read More

Step into a space that actually fits your life. At over 1,000 sq ft, this 3-bedroom suite at 3121 Sheppard Ave E #710 stands out in a market where most condos feel like a compromise. Here, you get room to grow, whether that means working from home, hosting friends, or simply having space to breathe at the end of the day. The layout just works. It is open, functional, and finished with hard surface flooring throughout, designed for low-maintenance, everyday living.The kitchen flows naturally into the living space, making it easy to cook, unwind, or entertain without feeling boxed in. All three bedrooms come with walk-in closets, offering a level of storage rarely found in condo living. What makes this unit different is its flexibility. The third bedroom, with its sleek glass enclosure, adapts to your lifestyle, it can be a home office today, a nursery tomorrow, or a guest space when you need it. Step out onto the balcony for open city views, or take advantage of the rare convenience of having a full outdoor terrace on the same floor, perfect for a quick reset without leaving the building.With parking included and maintenance fees covering heat, CAC, and water, with only hydro extra, this is a practical choice as much as it is a lifestyle upgrade. Enjoy unmatched convenience with premium amenities just steps away, including outdoor terrace, fitness centre, yoga studio, party and media rooms, guest suites, visitor parking, and 24-hour concierge. Located right where you need to be, with transit at your doorstep, quick access to Highways 401, 404, and the DVP, and everything from groceries to dining at Fairview Mall nearby, this is a home that keeps up with your pace. For those who want more than just a condo, this is space, flexibility, and everyday ease, all in one.

Listed by RE/MAX REALTRON REALTY INC..

Brought to you by your friendly REALTORS® through the MLS® System, courtesy of Brixwork for your convenience.
Disclaimer: This representation is based in whole or in part on data generated by the Brampton Real Estate Board, Durham Region Association of REALTORS®, Mississauga Real Estate Board, The Oakville, Milton and District Real Estate Board and the Toronto Real Estate Board which assumes no responsibility for its accuracy.

More Details
  • MLS®: E13017372
  • Bedrooms: 3
  • Bathrooms: 2
  • Type: Condo
  • Building: 3121 E Sheppard Avenue E, Toronto
  • Square Feet: 1,000 sqft
  • Taxes: $3,363.33 (2025)
  • Maintenance: $827.75
  • Parking: 1 Underground
  • Storage: None
  • View: City
  • Basement: None
  • Storeys: 6 storeys
  • Year Built: 2021
  • Style: Apartment

Contact us today to view any of these properties

416-509-5204













Similar Listings