About this Detached in Danforth
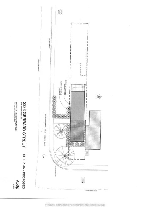
Unlock the opportunity to build a legal 4-plex with full Committee of Adjustment approval, including five granted variances, saving you time, money, and uncertainty. This extra-deep 150-ft lot faces Hannaford and features a rare 8-car parking pad at the rear. A game changer for multi-unit development. Add a laneway suite, redevelop into a custom single-family home or maintain as a rental income property.. With city-owned land buffering the lot, you get added green space and p…rivacy.  AAA tenant currently residing at the property under a 1 year tenancy agreement which runs from Sept 1, 2025 - Aug 31, 2026.  Buyers must assume the tenant or make alternate arrangements with them after closing.
Listed by  ROYAL LEPAGE/J & D DIVISION.
Unlock the opportunity to build a legal 4-plex with full Committee of Adjustment approval, including five granted variances, saving you time, money, and uncertainty. This extra-deep 150-ft lot faces Hannaford and features a rare 8-car parking pad at the rear. A game changer for multi-unit development. Add a laneway suite, redevelop into a custom single-family home or maintain as a rental income property.. With city-owned land buffering the lot, you get added green space and privacy. AAA tenant currently residing at the property under a 1 year tenancy agreement which runs from Sept 1, 2025 - Aug 31, 2026. Buyers must assume the tenant or make alternate arrangements with them after closing.
Listed by ROYAL LEPAGE/J & D DIVISION.
							 Brought to you by your friendly REALTORS® through the MLS® System, courtesy of Brixwork for your convenience.
							Brought to you by your friendly REALTORS® through the MLS® System, courtesy of Brixwork for your convenience.
							Disclaimer: This representation is based in whole or in part on data generated by the Brampton Real Estate Board, Durham Region Association of REALTORS®, Mississauga Real Estate Board, The Oakville, Milton and District Real Estate Board and the Toronto Real Estate Board which assumes no responsibility for its accuracy.
						
More Details
- MLS®: E12479871
- Bedrooms: 6
- Bathrooms: 1
- Type: Detached
- Square Feet: 1,500 sqft
- Lot Size: 2,809 sqft
- Frontage: 18.66 ft
- Depth: 150.54 ft
- Taxes: $4,026.23 (2025)
- Parking: 8 Parking(s)
- Basement: Unfinished
- Year Built: 2025
- Style: 2-Storey

More About Danforth, Toronto
lattitude: 43.6852375
longitude: -79.2935096
M4E 2E5
 
	
     
						 
						 
						 
						 
						 
						 
						 
						 
						 
						 
						 
						 
						 
						 
						 
						 
						 
						 
						 
						 
						 
						 
						 
						 
						 
						 
						 
						 
						 
						 
						 
                 
                 
                 
                 
                 
                 
                