11 Montressor Drive, Windfields, Toronto
Just Listed

11 Montressor Drive

Windfields, Toronto

About this Detached in Windfields

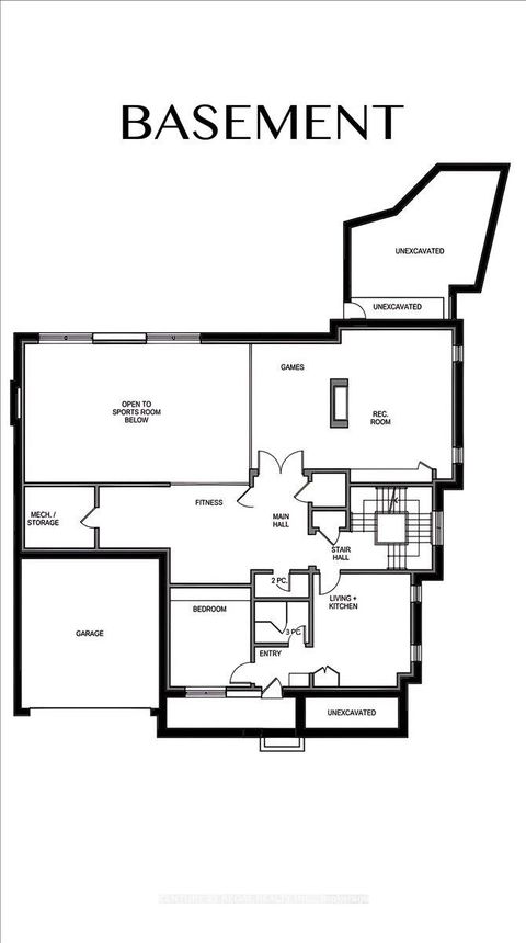
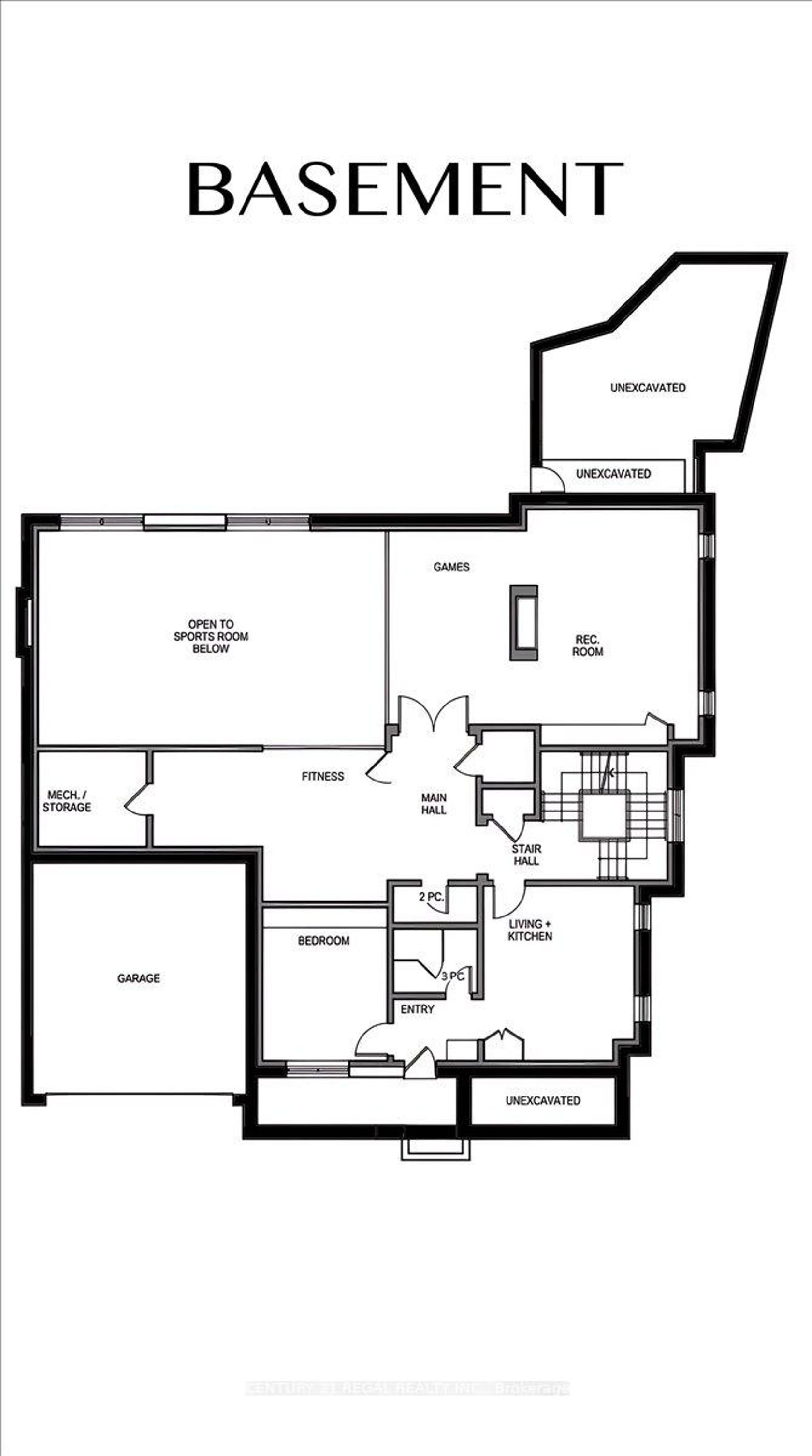
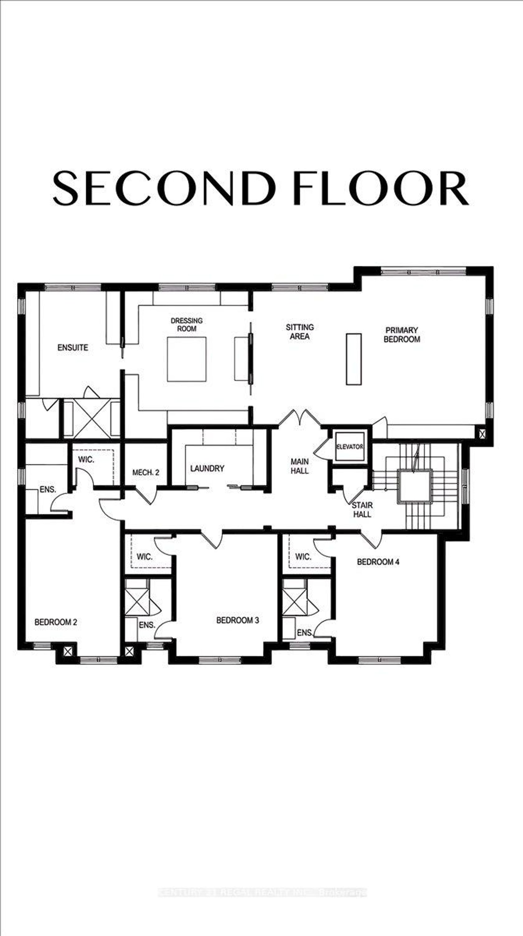
An exceptional opportunity to purchase a brand new, custom-built luxury home in the prestigious St. Andrew-Windfields neighbourhood, situated on a rare ravine-backed lot of approximately 12,800 sq. ft. This offering allows a buyer to acquire the property as a fully designed and approved new build, with all architectural plans, engineering, and approvals already completed and a reputable builder prepared to deliver the home. The approved design features over 7,600 sq. ft. of living space, thoughtfully planned to maximize scale, natural light, and the ravine setting. All major pre-construction work has been completed, including architectural design by Contempo Studio, HVAC and grading design, and building permit submission-providing a streamlined path from purchase to construction. Buyers benefit from significantly reduced timelines and risk compared to starting a custom build from scratch. The home design includes grand principal rooms, high ceilings, elevator provision, expansive outdoor terraces, and a backyard concept ideal for entertaining and enjoying the natural surroundings. Finishes may be customized within the builder's specifications, offering a balance of personalization and certainty. A rare chance to secure a brand new luxury residence without the typical delays associated with design, approvals, and permitting. Full drawings, specifications, and build details available . This lot is shovel ready and waiting for you!

Listed by CENTURY 21 REGAL REALTY INC..

Read More

An exceptional opportunity to purchase a brand new, custom-built luxury home in the prestigious St. Andrew-Windfields neighbourhood, situated on a rare ravine-backed lot of approximately 12,800 sq. ft. This offering allows a buyer to acquire the property as a fully designed and approved new build, with all architectural plans, engineering, and approvals already completed and a reputable builder prepared to deliver the home. The approved design features over 7,600 sq. ft. of living space, thoughtfully planned to maximize scale, natural light, and the ravine setting. All major pre-construction work has been completed, including architectural design by Contempo Studio, HVAC and grading design, and building permit submission-providing a streamlined path from purchase to construction. Buyers benefit from significantly reduced timelines and risk compared to starting a custom build from scratch. The home design includes grand principal rooms, high ceilings, elevator provision, expansive outdoor terraces, and a backyard concept ideal for entertaining and enjoying the natural surroundings. Finishes may be customized within the builder's specifications, offering a balance of personalization and certainty. A rare chance to secure a brand new luxury residence without the typical delays associated with design, approvals, and permitting. Full drawings, specifications, and build details available . This lot is shovel ready and waiting for you!

Listed by CENTURY 21 REGAL REALTY INC..

Brought to you by your friendly REALTORS® through the MLS® System, courtesy of Brixwork for your convenience.
Disclaimer: This representation is based in whole or in part on data generated by the Brampton Real Estate Board, Durham Region Association of REALTORS®, Mississauga Real Estate Board, The Oakville, Milton and District Real Estate Board and the Toronto Real Estate Board which assumes no responsibility for its accuracy.

More Details
  • MLS®: C13032314
  • Bedrooms: 6
  • Bathrooms: 10
  • Type: Detached
  • Square Feet: 5,000 sqft
  • Lot Size: 9,983 sqft
  • Frontage: 65.25 ft
  • Depth: 153.00 ft
  • Taxes: $14,252 (2025)
  • Parking: 8 Built-In
  • Basement: Other, Walk-Up
  • Style: 3-Storey

Contact us today to view any of these properties

416-509-5204













Similar Listings