15 Artinger Court, Don Mills, Toronto

15 Artinger Court

Don Mills, Toronto

About this Detached in Don Mills

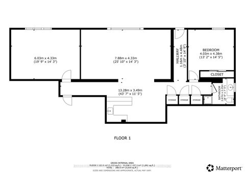
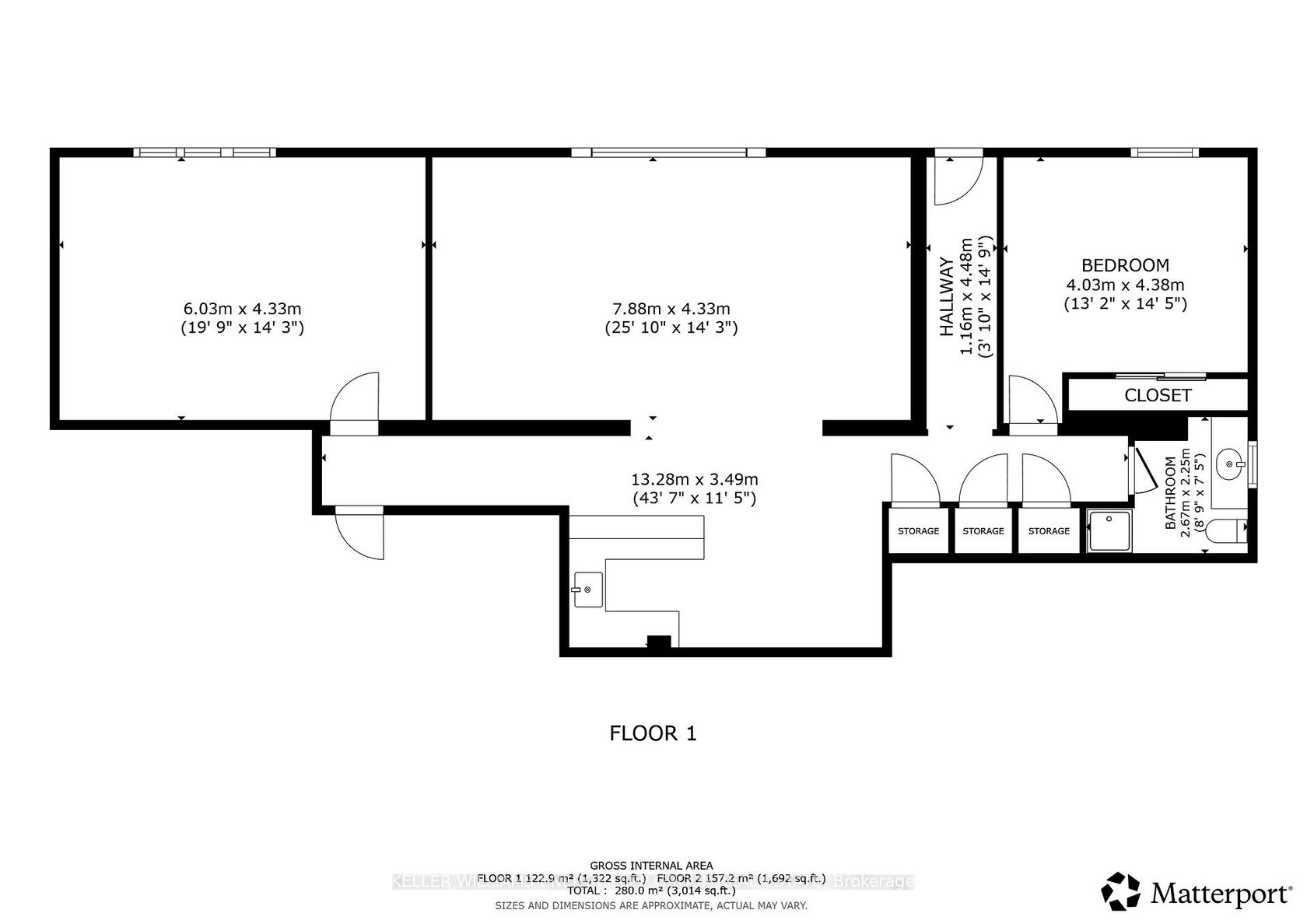
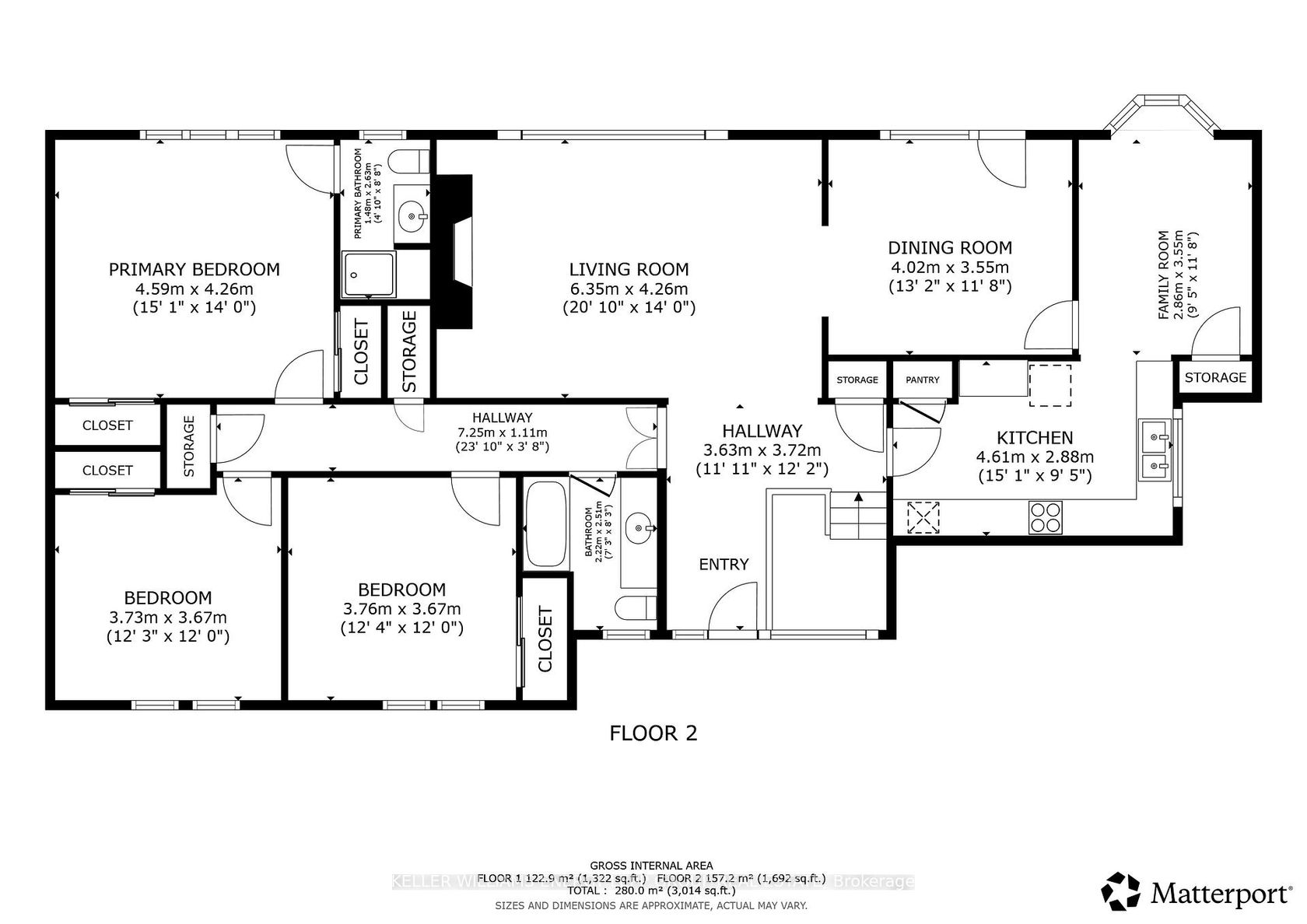
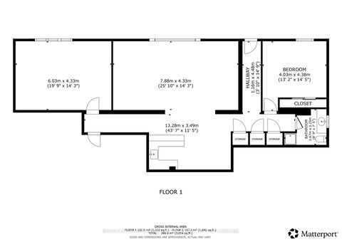
Build your dream home on a stunning pie-shaped ravine lot nestled on a quiet Banbury court, directly across from the prestigious Bridle Path estates. This exceptional 14,003 sq. ft. property widens to 142 ft. at the rear and offers the rare advantage of a full ground-floor walkout. Included in the sale are fully approved permits - Building, TRCA, HVAC, and Demolition - along with architectural plans for an impressive 8,400 sq. ft. modern residence (5,762 sq. ft. above grade plus full ground floor). A Federal elevator has already been ordered with the deposit paid.The approved design showcases 9 and 10 ft. ceilings and a thoughtfully designed 2,638 sq. ft. main floor featuring a two-storey family room, formal dining room, state-of-the-art kitchen and breakfast area with terrace walkout, music room, and mudroom - all oriented to take in breathtaking ravine views. The second level offers a luxurious primary suite with balcony, two walk-in closets with skylights, a five-piece ensuite, three additional bedrooms with ensuites, a library, and a laundry room. The lower level design includes multiple walkouts to the ravine, a recreation room with bar and media area, playroom, large office with separate entrance, exercise room with sauna and spa, fifth bedroom with ensuite, powder room, utility, and cold rooms.An existing sprawling 1960s bungalow in mint, livable condition currently occupies the site. Ideally located steps to Edwards Gardens, Toronto Botanical Garden, Rosedale Golf Club, Banbury Community Centre, tennis courts, Sunnybrook Health Sciences Centre, York University Glendon Campus, and the Shops at Don Mills, with quick access to the Don Valley Parkway and Highway 401.All permits are in place. Full documentation package available upon request. Note: Room measurements describe the existing bungalow currently on the property.

Listed by KELLER WILLIAMS ENERGY LEPP GROUP REAL ESTATE.

Read More

Build your dream home on a stunning pie-shaped ravine lot nestled on a quiet Banbury court, directly across from the prestigious Bridle Path estates. This exceptional 14,003 sq. ft. property widens to 142 ft. at the rear and offers the rare advantage of a full ground-floor walkout. Included in the sale are fully approved permits - Building, TRCA, HVAC, and Demolition - along with architectural plans for an impressive 8,400 sq. ft. modern residence (5,762 sq. ft. above grade plus full ground floor). A Federal elevator has already been ordered with the deposit paid.The approved design showcases 9 and 10 ft. ceilings and a thoughtfully designed 2,638 sq. ft. main floor featuring a two-storey family room, formal dining room, state-of-the-art kitchen and breakfast area with terrace walkout, music room, and mudroom - all oriented to take in breathtaking ravine views. The second level offers a luxurious primary suite with balcony, two walk-in closets with skylights, a five-piece ensuite, three additional bedrooms with ensuites, a library, and a laundry room. The lower level design includes multiple walkouts to the ravine, a recreation room with bar and media area, playroom, large office with separate entrance, exercise room with sauna and spa, fifth bedroom with ensuite, powder room, utility, and cold rooms.An existing sprawling 1960s bungalow in mint, livable condition currently occupies the site. Ideally located steps to Edwards Gardens, Toronto Botanical Garden, Rosedale Golf Club, Banbury Community Centre, tennis courts, Sunnybrook Health Sciences Centre, York University Glendon Campus, and the Shops at Don Mills, with quick access to the Don Valley Parkway and Highway 401.All permits are in place. Full documentation package available upon request. Note: Room measurements describe the existing bungalow currently on the property.

Listed by KELLER WILLIAMS ENERGY LEPP GROUP REAL ESTATE.

Brought to you by your friendly REALTORS® through the MLS® System, courtesy of Brixwork for your convenience.
Disclaimer: This representation is based in whole or in part on data generated by the Brampton Real Estate Board, Durham Region Association of REALTORS®, Mississauga Real Estate Board, The Oakville, Milton and District Real Estate Board and the Toronto Real Estate Board which assumes no responsibility for its accuracy.

More Details
  • MLS®: C12472373
  • Bedrooms: 3
  • Bathrooms: 3
  • Type: Detached
  • Square Feet: 1,500 sqft
  • Lot Size: 8,800 sqft
  • Frontage: 55.00 ft
  • Depth: 160.00 ft
  • Taxes: $13,848 (2024)
  • Parking: 8 Attached
  • Basement: Finished, Walk-Out
  • Style: Bungalow-Raised

Contact us today to view any of these properties

416-509-5204













Similar Listings